El mercado de las casas prefabricadas no para de crecer, y estas viviendas cogen fuerza frente a las construcciones tradicionales. Sus precios muchos más bajos y sus rápidos plazos de entrega las convierten en una alternativa a tener en cuenta por aquellos que buscan una segunda residencia. Y es que sí, estas viviendas pueden ser ideales para vivir en familia o compartir días con amigos, ya que se encuentran modelos con mucho espacio como este con 5 habitaciones.
Se trata de la casa prefabricada madera AGNES, fabricada por Pineca, cuya entrega se realiza en un plazo estimado de entre 2 y 6 semanas, y que tiene una rebaja en su precio original de más de 500 euros, costando tan solo 27.533 euros.
Pero antes de instalar esta o cualquier otra casa prefabricada hay que tener en cuenta que no todo es elegir e instalar. Estas viviendas requieren de ciertos permisos y licencias de instalación que dependerán del tipo de terreno y del ayuntamiento en el que se encuentre el mismo. Hacerlo sin estas licencias podría provocar tener problemas legales e incluso que la justicia ordenase de demolición de la casa.
Así es esta casa prefabricada de 5 habitaciones y 2 baños
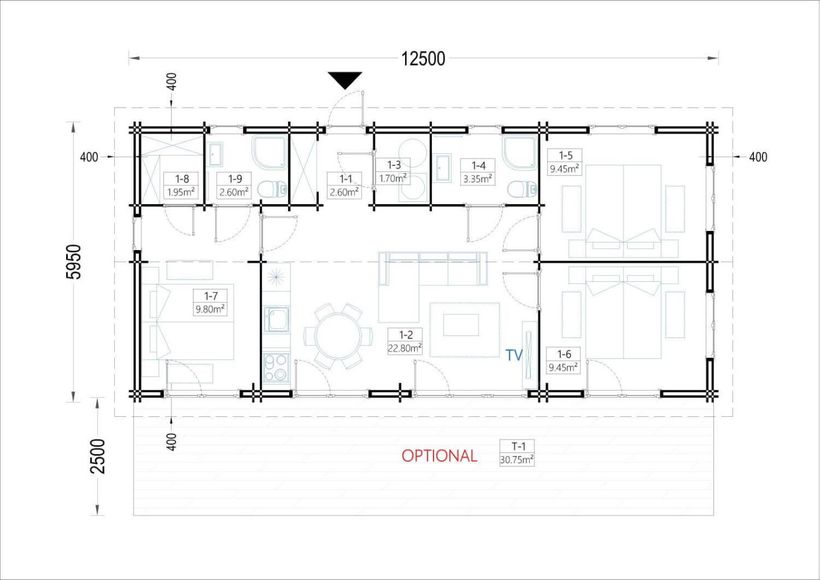
Esta casa prefabricada está pensada para quienes buscan una casa funcional, con espacio suficiente y fácil de instalar. Tiene una superficie de 75 metros cuadrados, se distribuye en 3 dormitorios, un amplio salón con cocina abierta, 2 baños completos y dos habitaciones auxiliares que pueden destinarse a almacenamiento, vestidor u oficina.

Uno de sus principales atractivos es su terraza de 30 metros, conectada con el interior a través de cuatro puertas de doble cristal que facilitan la entrada de luz natural y permiten disfrutar del entorno exterior con total comodidad.

Está fabricada en madera maciza de pino nórdico y abeto escandinavo certificado, con paredes de doble espesor (44+44 mm), y se entrega en madera natural sin tratar, aunque es posible solicitar un tratamiento adicional. Su diseño está pensado para climas variados, y existe una versión con aislamiento térmico mejorado para uso durante todo el año.
Qué se incluye en el precio
Actualmente, este modelo se encuentra a la venta por 27.533 euros, en esta cantidad se incluyen los principales componentes estructurales (paredes, suelo, techo, ventanas, puertas, herrajes e IVA), aunque hay que tener en cuenta que el transporte, la instalación y el tratamiento de la madera se presupuestan aparte.
El montaje tampoco está incluido, aunque se facilitan todas las instrucciones para hacerlo, no obstante si no se quiere instalar por cuenta propia puede contratarse directamente con la empresa.

